Property Detail

2148 Curtis St

Berkeley CA 94702

$795,000

Status: Active

Property Details

Description

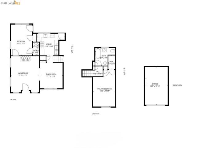
TIC opportunity! Charming vacant Central Berkeley Mediterranean unit featuring arches, built-ins, tons of natural light, substantial renovations, and preserved Craftsman details throughout. Townhome-style unit feature two bedrooms and two bathrooms with a split-level design - lives like single-family homes. Original gleaming original wood floors, a stylish fireplace, and an excellent floor plan with seamless flow into a formal dining area and a fully renovated kitchen. The primary bedroom/bathroom suite sits atop a split-level staircase, with a second bedroom and bathroom below. Full seismic retrofit by Bay Area Retrofit. An incredible location situated in sought-after Poets Corner in Central Berkeley, the property is just 900 feet from Strawberry Creek Park and easy access to BART. 94 Walkscore. BESO score 1.

Map Location

Listing provided courtesy of Cameron Parkinson of District Homes. Last updated 2026-04-27 08:19:11.000000. Listing information © 2025 CRMLS.

  • Log in
  • ×