Property Detail

1081 Judson

Belmont CA 94002

$1,288,000

Status: Active

Property Details

Description

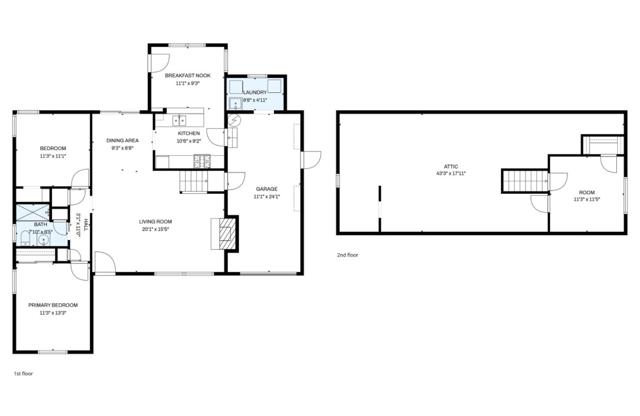
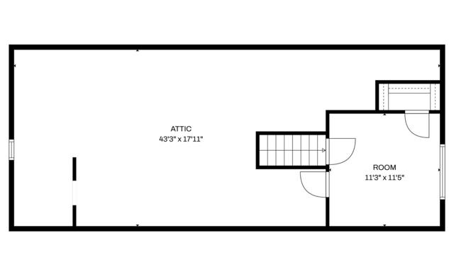
Charming starter home with exceptional potential, ideally located less than 1/2 a mile from Downtown Belmont, offering a variety of dining, shopping, & convenient access to the Belmont Caltrain Station. Commuters will appreciate the close proximity to Highway 101, while the nearby Hillsdale Shopping Center--just 2 miles away--provides even more retail and dining options. With O'Donnell Park just down the street & access to highly rated schools, this home is perfectly suited for those looking to put down roots. Inside, a bright & airy open layout seamlessly connects the living and dining areas. The inviting living room is centered around a cozy fireplace, while the dining area opens to the deck & backyard through sliding glass doors--ideal for indoor-outdoor living. The adjacent kitchen features a breakfast nook with additional deck access and offers direct entry to the garage & laundry area for added convenience. The home includes three bedrooms & one bathroom, with one bedroom privately situated on the second floor. The front & backyard are enhanced by mature landscaping, including a large lemon tree, creating a serene outdoor setting. A wonderful opportunity to customize and make your own, 1081 Judson Street presents endless possibilities in a desirable Belmont location.

Map Location

Listing provided courtesy of Stanley Lo of Green Banker Realty. Last updated 2026-04-26 08:22:57.000000. Listing information © 2025 CRMLS.

  • Log in
  • ×