Property Detail

14273 Sinclair

Magalia CA 95954

$175,000

Status: Active

Property Details

Description

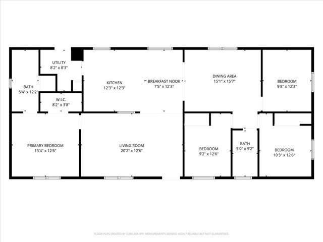
Rare opportunity to own a 4-bedroom manufactured home on a permanent foundation in the desirable Paradise Pines community of Magalia—fully lendable and move-in ready. Recent updates include a new roof installed in Summer 2023, newer exterior paint, and over $4,000 in tree work completed to enhance fire safety and peace of mind. This 1,560 square foot home on a 0.24-acre lot offers a spacious and flexible layout, featuring a bonus room currently used as a dining area and previously enjoyed as a family/play room, along with a fully fenced backyard and detached shed for additional storage. As part of the Paradise Pines Property Owners Association, residents enjoy access to an array of amenities including a community pool, tennis courts, picnic areas, scenic walking and hiking trails, and year-round community events. Comfort, functionality, and community come together in this affordable offering—don’t miss it!

Map Location

Listing provided courtesy of Sheerene Mehrizi of Century 21 Select Real Estate Inc.. Last updated 2026-04-06 08:15:29.000000. Listing information © 2025 CRMLS.

  • Log in
  • ×