Property Detail

534 Whitesage Road

San Marcos CA 92078

$3,595

Status: Active

Property Details

Description

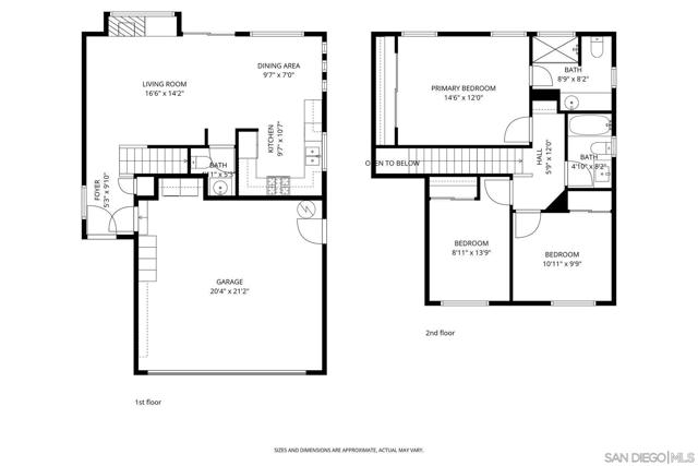
Beautiful home with open and bright floor plan featuring high ceilings. Completely remodeled kitchen; features granite counter tops, high end Kitchen Aid stainless steel appliances and custom cabinetry. The powder room and fireplace downstairs have Italian marble while the upstairs bathrooms have been done with elegant modern tile. Main floor has gorgeous wood flooring that is also durable, while the upper level has plush brand new carpeting. The home has been freshly painted throughout and has custom trim, base boards and crown molding throughout the home. 3 full bedrooms upstairs and 2.5 bathrooms in a spacious 1,177 Sq Ft detached home. The private back yard with beautiful landscaping and built in BBQ is a perfect place to relax on the weekends! Attached two car garage with storage and laundry hook ups. No roommates, no pets, no smoking, 1 year lease required.

Map Location

Listing provided courtesy of Brian Reifeiss of RE/MAX Connections. Last updated 2026-03-23 08:20:26.000000. Listing information © 2025 CRMLS.

  • Log in
  • ×