Property Detail

4254 N Canoga

Woodland Hills CA 91364

$339,000

Status: Active

Property Details

Description

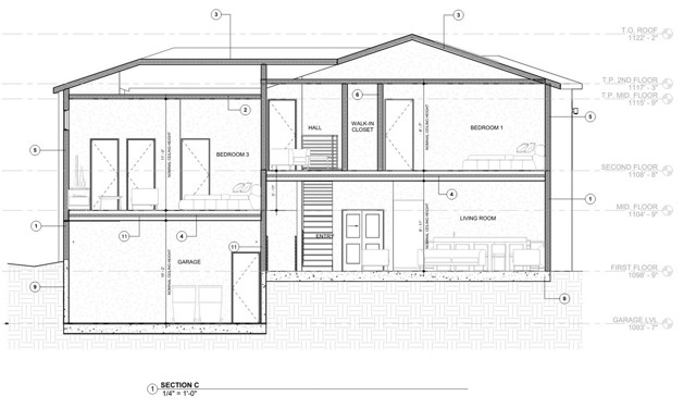
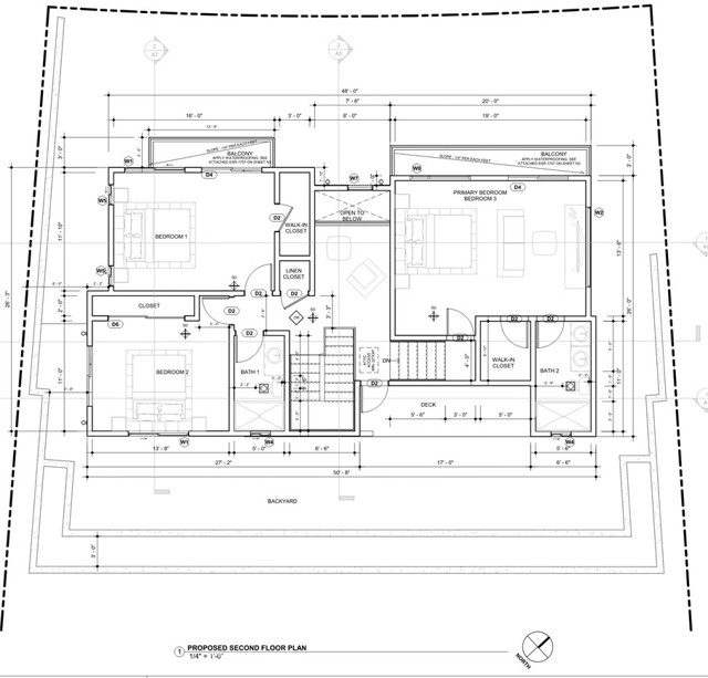
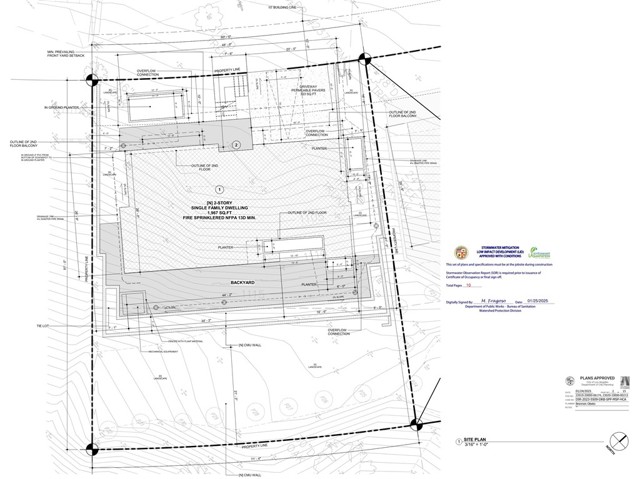
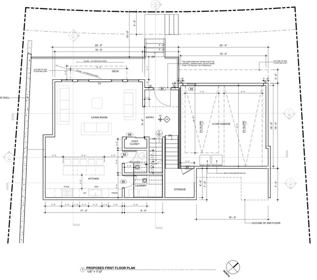
Vacant Lot with Permits Pulled and Fees Paid – 4254 Canoga Avenue (Lot No. 5257, Cut 1 & 2) Excellent opportunity to build a beautifully designed single-family residence in a highly desirable Woodland Hills neighborhood. The property comes with a full set of approved plans and building permits already pulled, with permit fees paid, for a stylish home featuring approximately 2,225 sq. ft. of building area (1,913 sq. ft. RFA), including an attached garage. The lot is approximately 5,317 sq. ft. (per tax assessor) and is situated on an uphill site — no costly caisson work required. All approvals have been secured through the Mulholland Corridor Design Review Board, and the architectural, structural, grading, and landscape plans are included. Construction can begin immediately. This is a great opportunity to develop in a prime location surrounded by quality homes. The proposed design blends modern style with the natural hillside setting, creating a perfect balance of comfort and elegance. Note: Buyer to verify all information independently. Also see listings for 4256 and 4260 Canoga Avenue for nearby opportunities.

Map Location

Listing provided courtesy of Behnam Ansari of Gold Star Realty. Last updated 2026-03-10 08:21:01.000000. Listing information © 2025 CRMLS.

  • Log in
  • ×