Property Detail

4260 Canoga

Woodland Hills CA 91364

$339,000

Status: Active

Property Details

Description

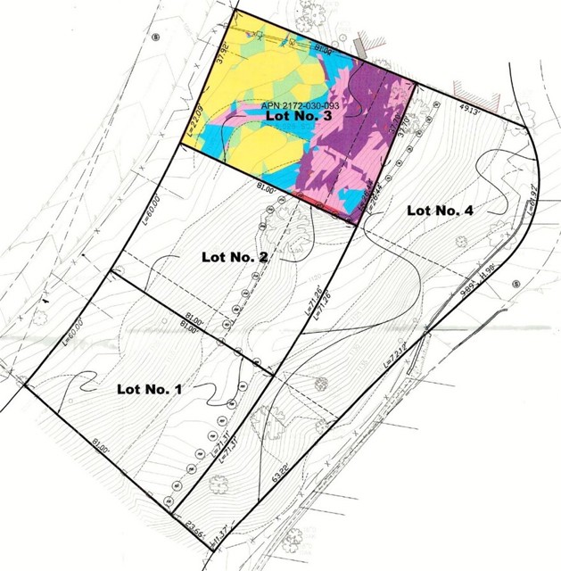
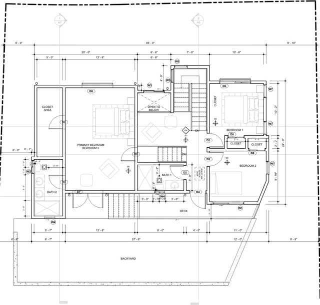
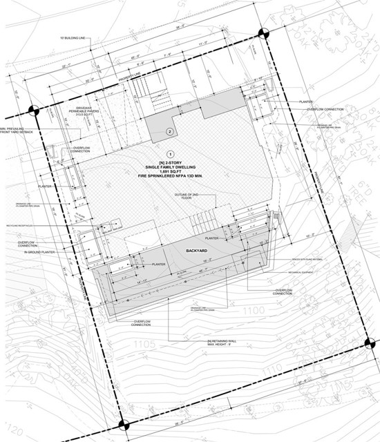
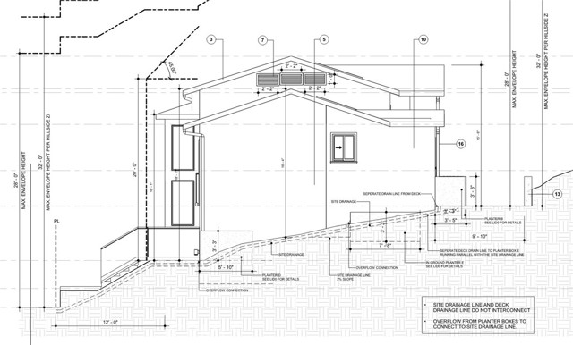
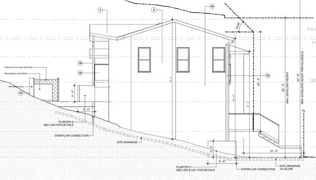
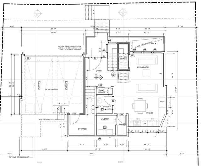
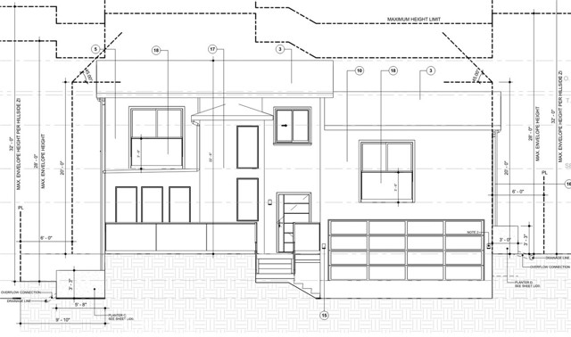
Vacant Lot with **Permits Pulled and Fees Paid** – 4260 Canoga Avenue (Lot No. 5255, Cut 1 & 2) Excellent opportunity to build a beautifully designed single-family residence in a highly desirable Woodland Hills neighborhood. The property includes a full set of well-designed, approved plans for a stylish home with approximately 1,957 sq. ft. of building area (1,691 sq. ft. RFA), including an attached garage. The lot is approximately 5,027 sq. ft. (per the tax assessor) and is situated on an uphill site — no costly caisson work required. All approvals have been secured through the **Mulholland Corridor Design Review Board**, and the **architectural, structural, grading, and landscape plans are included**. Construction can begin immediately. This is a great opportunity to develop in a prime location surrounded by quality homes. The proposed design blends modern style with the natural hillside setting, creating a perfect balance of comfort and elegance. **Note:** Buyer to verify all information independently. Also see the listings for 4254 and 4256 Canoga Avenue for nearby opportunities.

Map Location

Listing provided courtesy of Behnam Ansari of Gold Star Realty. Last updated 2026-03-10 08:23:45.000000. Listing information © 2025 CRMLS.

  • Log in
  • ×