Property Detail

7066 Cypress Point

San Jose CA 95139

$888,888

Status: Active

Property Details

Description

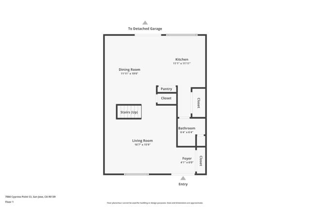
Tucked inside the peaceful, tree-lined Santa Teresa Townhomes community, 7066 Cypress Point Ct offers the space, layout, and location buyers want in South San Jose. This refreshed two-story townhome features a bright formal living room, dedicated dining area, and an inviting kitchen with a breakfast bar that opens to the main living space. Large windows and sliding glass doors fill the home with natural light and create easy indoor-outdoor flow. Laminate flooring throughout adds warmth and a clean, move-in ready feel. Upstairs includes three generously sized bedrooms with ample storage and flexibility for family or home office use. The private patio with a Trex deck is perfect for relaxing or entertaining. Additional highlights include in-unit laundry, a detached 2-car garage, and ample guest parking. HOA covers exterior maintenance, roof, water, sewer, pools, and beautifully maintained grounds. Conveniently located near Santa Teresa Golf Club, hiking trails, parks, shopping, Costco, and major commuter routes. A rare opportunity in one of South San Joses most established communities.

Map Location

Listing provided courtesy of Andy Pham of Fifty Hills Real Estate. Last updated 2026-02-12 09:16:39.000000. Listing information © 2025 CRMLS.

  • Log in
  • ×