Property Detail

9800 Bolsa #79

Westminster CA 92683

$207,000

Status: Active

Property Details

Description

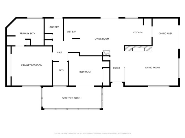
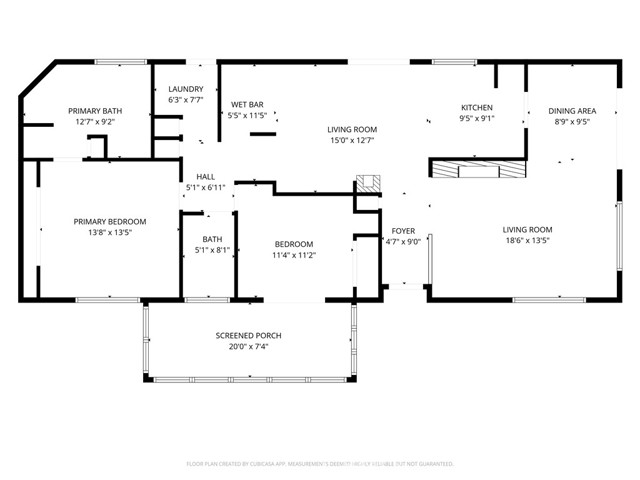
Welcome to this charming 2-bedroom, 2-bath home located in a desirable Senior Community in the heart of Westminster. This spacious mobile home offers a comfortable and functional layout, featuring a formal dining area, formal living room, and a cozy family/TV area perfect for relaxing or entertaining. The kitchen opens to both the dining area and family room and includes a convenient wet bar, making it an ideal space for gatherings. Enjoy additional living space in the enclosed patio, perfect for morning coffee, hobbies, or extra storage. Located directly in front of the community pool and community office, this home offers exceptional convenience. The unit is also close to the park entrance and just minutes from shopping, dining, and major freeways, providing easy access to everything you need. This inviting home combines comfort, location, and community—perfect for relaxed senior living in Westminster.

Map Location

Listing provided courtesy of Josephine Brito of Jody Barnett, Broker. Last updated 2025-12-13 09:16:30.000000. Listing information © 2025 CRMLS.

  • Log in
  • ×