Property Detail

2645 Bandit

Palm Springs CA 92264

$859,408

Status: Active

Property Details

Description

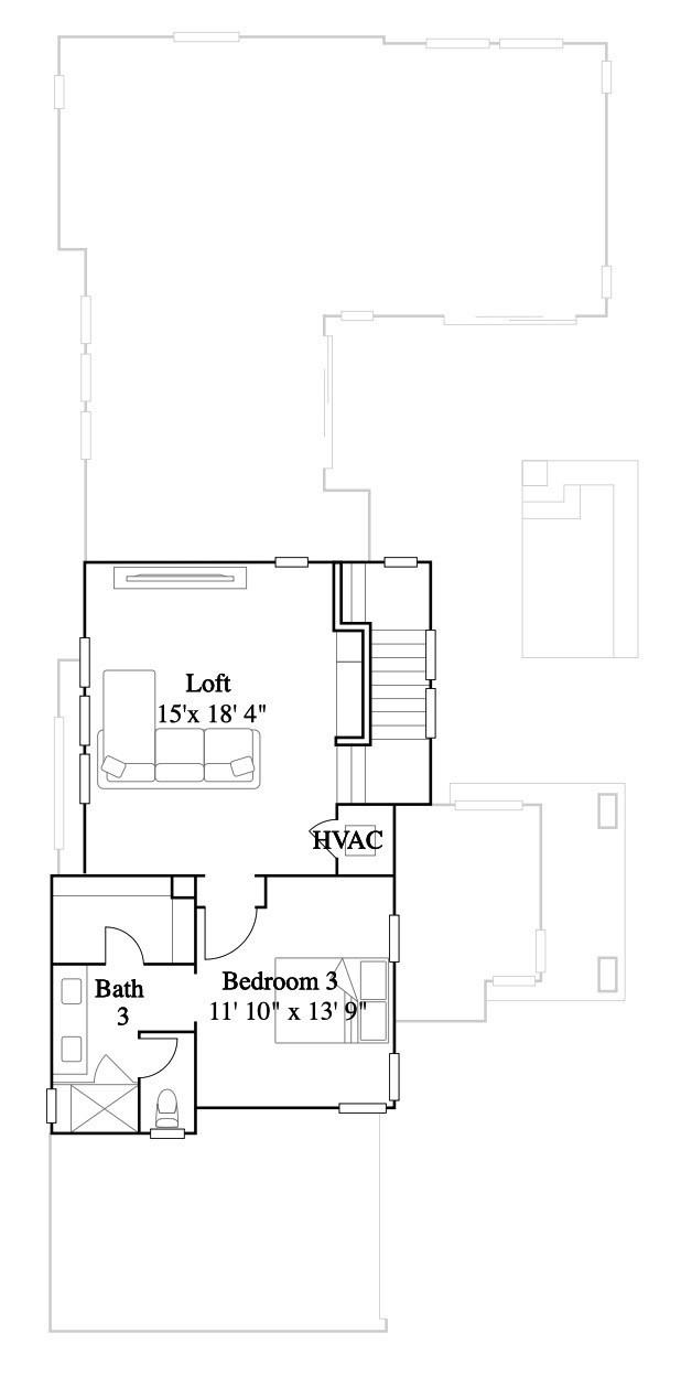
NEW CONSTRUCTION! This new two-story home features an inviting courtyard and swimming pool to encourage easy outdoor entertainment and leisure. An open-concept layout blends the kitchen, living and dining areas for simple transitions and multitasking, with a luxurious owner’s suite at the back of the home, complete with a full bathroom and walk-in closet. A secondary bedroom is located near the front just steps from a full bathroom, and a versatile loft on the second floor is easily accessible from an additional bedroom. The kitchen features Miami Vena white quartz countertops. Canyon View is a new community of single-family homes for sale in Palm Springs, CA. Residents will enjoy access to an onsite park and an array of shopping, dining and entertainment options in downtown Palm Springs, just five miles away. Plan a fun-filled weekend trip to Agua Caliente Casino for upscale gaming and entertainment, or head out to one of the several local golf courses to work on your game.

Map Location

Listing provided courtesy of Todd Myatt of Century 21 Masters. Last updated 2025-12-08 09:17:09.000000. Listing information © 2025 CRMLS.

  • Log in
  • ×