Property Detail

2328 S Cherry

Fresno CA 93706

$950,000

Status: Active

Property Details

Description

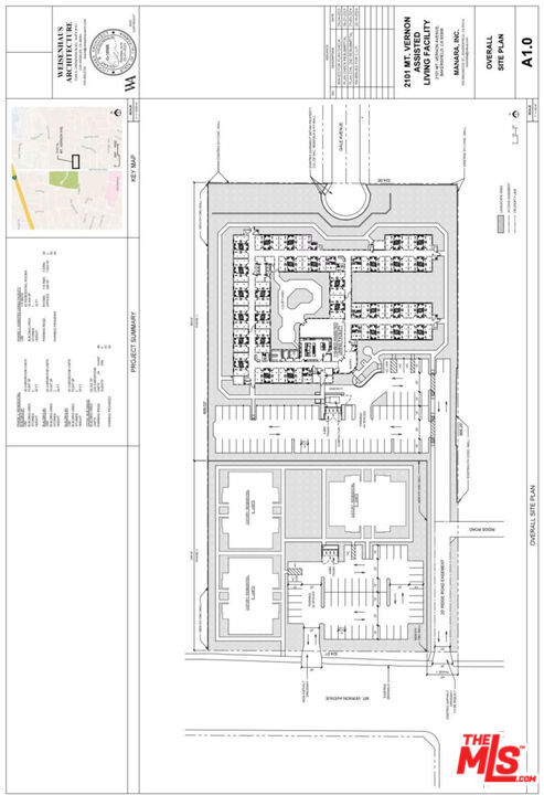
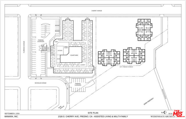
Exceptionally unique opportunity to own and develop a multi-purpose/multi-zone RS-5. +/-4.19 acre parcel of land, perfectly positioned adjacent to the CA-41 and CA-99 offering exceptional visibility for several unique ventures. Nestled right on the border of the vibrant city of Fresno, this property boasts multi residential zoning parcel that's very hard to find. Privacy and security are paramount here, as the property is fully fenced in. We purchased this property in an effort to combat the housing crisis by building a comprehensive assisted living and housing complex to house 250 individual. Whether your vision involves separate housing units, a supportive housing community with over 250 bed, or any future development, this versatile property stands as an ideal canvas for any residential/business project. This piece of land is part of a duplicate project we are currently developing in the cities of Palmdale (LA County) and Bakersfield (Kern County).All three land development projects made possible with similar plans, land use, and size. Please see attached documents. This listing includes complete plans for our 250 bed assisted living facilities and apartments. It cost over 150k to get these plans developed and currently approved in Bakersfield.

Map Location

Listing provided courtesy of Mezdan Mota of The Dana Real Estate & Investments Inc.. Last updated 2025-10-26 08:21:25.000000. Listing information © 2025 CRMLS.

  • Log in
  • ×