Property Detail

759 Border Ave

Torrance CA 90501

$4,400

Status: Active

Property Details

Description

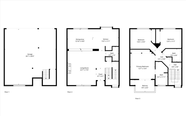
Step into one of the most coveted communities in beautiful historic downtown Torrance. Welcome to this immaculate, turnkey 3 bedroom, 2.5 bathroom, 3-car garage townhome that checks every box. Stylish, sun-filled, newly painted, double pane windows and sliding door, remodeled kitchen and bathrooms, in-unit laundry. Move-in ready with window drapes, plantation shutters and complete high-end appliances. This home combines modern convenience with timeless architectural charm, all in a location that’s rated Very Walkable with a walk score of 81. From the moment you enter you’ll feel the warmth of home. Inside, the living room welcomes you with a cozy fireplace, wood floors flow throughout, creating an inviting and elegant atmosphere. The living room flows into the dining area and remodeled kitchen. Designed with function and style, the kitchen is a true centerpiece with quartz countertops, stainless steel appliances, recessed lighting, and a custom-built pantry with soft-close pull-out shelves. Also on this level: a stylishly updated powder room and a door that leads to an attached 3-car garage with a convenient laundry area. The extra space in the garage can be used as a children’s play area or a home gym. Upstairs, you’ll find three bedrooms and two full bathrooms. The primary suite is a peaceful retreat with an en-suite bathroom and a balcony. This primary bathroom has just been beautifully remodeled with a double sink vanity and a walk-in shower with glass enclosure. The second level hallway bathroom has a new extra-deep soaking bathtub. Additional features include new HVAC central a/c and heat system, townhome with 200+ amps electrical panel, garage wired for an electric charger should you wish to install one, ceiling fans in every bedroom and living room, large storage room in the garage, MyQ smart garage door opener, video doorbell, and TV mount above the fireplace already installed. Stroll to Historic Downtown Torrance that feels like a charming neighborhood in Europe where there are renowned bakeries, restaurants and coffee shops. There is so much here, all within walking distance. You'll love strolling the tree-lined streets, visiting vintage boutiques, working out at local fitness studios, and spending peaceful moments at El Prado Park. A chance to live in a walkable, vibrant community where every day feels like a little getaway. And, yes, this home is in the distinguished Torrance School District.

Map Location

Listing provided courtesy of Veronica Sun of eXp Realty of Greater Los Angeles, Inc.. Last updated 2025-10-29 08:18:54.000000. Listing information © 2025 CRMLS.

  • Log in
  • ×