Property Detail

8575 Morro

Atascadero CA 93422

$1,400,000

Status: Active

Property Details

Description

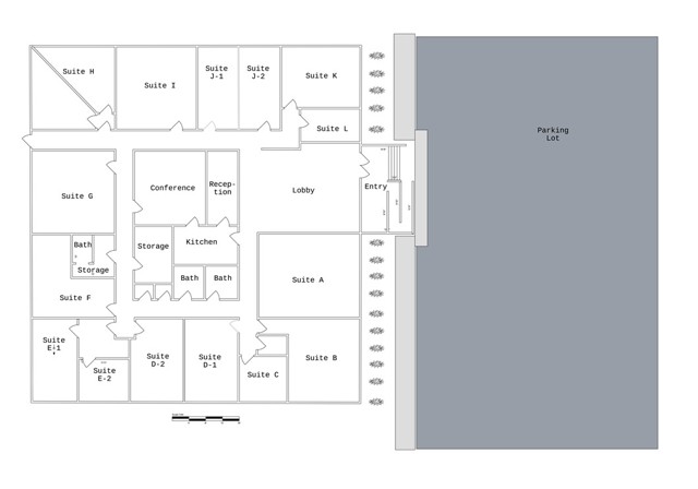
This exceptional, single level 6088 square foot commercial building offers a rare investment opportunity in a prime location on a well-known, heavily traveled road. The property includes 15 individual units, making it ideal for office rentals or small businesses. Inside, tenants and clients will appreciate a shared reception area, a spacious conference room, a sizable kitchen and two common bathrooms, all designed for convenience and functionality. The building extends from street to street, providing excellent accessibility and visibility. The dedicated parking lot has been freshly resurfaced and offers 20 spaces, with additional parking available in the back. Additional items include owned solar and newer HVAC. Whether you're looking to expand your investment portfolio or establish a central hub for your business, this property offers strong potential and long-term value in a high-traffic, high-demand area.

Map Location

Listing provided courtesy of Jaime Silveira of Malik Real Estate Group, Inc.. Last updated 2025-11-10 09:34:29.000000. Listing information © 2025 CRMLS.

  • Log in
  • ×