Property Detail

12835 Titian

Granada Hills CA 91344

$4,900

Status: Active

Property Details

Description

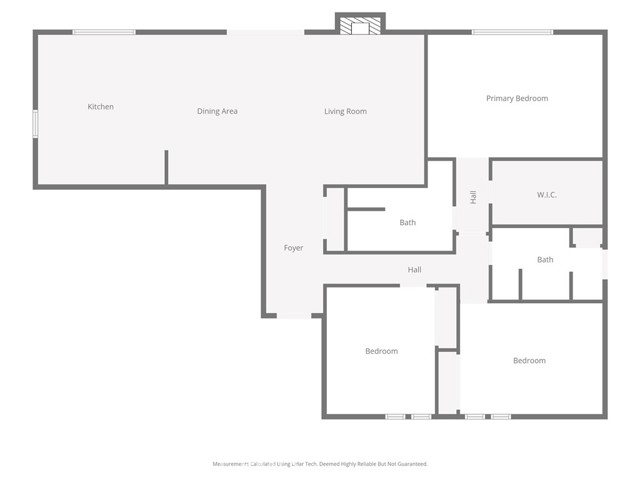
The garage has been converted into an ADU and is currently tenant-occupied. Welcome to this beautiful 3-bedroom, 2-bathroom home in the desirable north of Rinaldi neighborhood! With an appealing front yard featuring concrete grass pavers, this home offers 1,800 sqft of living space on a spacious 9,500 sqft lot. Inside, you'll find a welcoming entryway leading to a family room and a living room with high ceilings, a cozy fireplace, and built-in speakers for entertainment. The chef's kitchen is equipped with a large center island, quartz countertops, shaker cabinets, and stainless-steel appliances, all opening seamlessly to a dining area. The open living and dining area provide plenty of room for gatherings and entertainment. Outside, you'll discover a private oasis with an BBQ area, kids' playground, basketball hoop, and more. Conveniently located near the highly sought-after Van Gogh Elementary School and within walking distance to Bee Canyon and O'Melveny Parks.

Map Location

Listing provided courtesy of David Zakaryan of Pinnacle Estate Properties. Last updated 2026-04-19 08:19:12.000000. Listing information © 2025 CRMLS.

  • Log in
  • ×