Property Detail

1223 Tustin

Anaheim CA 92807

$1,475,000

Status: Active

Property Details

Description

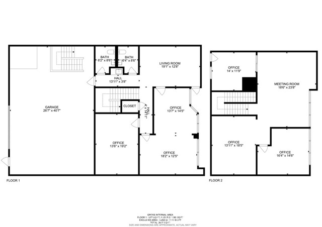
Highly visible office/warehouse property offering 3,485 SF, 2,219 SF of office space and 1,021 SF of warehouse. The functional two-story layout features a reception area, five private offices, a conference room, and a warehouse with 14’ clear height. Located in Tustin Ave Business Park with exposure to approximately 28,000 vehicles per day, the property provides excellent visibility and convenient access to the 91, 55, and 57 Freeways. Additional highlights include a strong parking ratio of 5.74/1,000 SF and a well-maintained HOA. A 3D virtual tour is available, allowing prospective buyers to explore the layout and functionality of the property remotely.

Map Location

Listing provided courtesy of Leo Gutierrez-Torres of Pellego, Inc.. Last updated 2026-04-17 08:32:17.000000. Listing information © 2025 CRMLS.

  • Log in
  • ×