Property Detail

2144 Curtis St

Berkeley CA 94702

$1,495,000

Status: Active

Property Details

Description

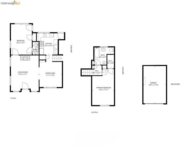
Charming fully vacant Central Berkeley Mediterranean duplex featuring arches, built-ins, tons of natural light, substantial renovations, and preserved Craftsman details throughout. Townhome-style units on either side of the garages each feature two bedrooms and two bathrooms with a split-level design so they live like single-family homes. The corner unit (2148) showcases gleaming original wood floors, a stylish fireplace, and an excellent floor plan. The living room flows seamlessly into a formal dining area and a fully renovated kitchen. The primary bedroom/bathroom suite sits atop a split-level staircase, with a second bedroom and bathroom below. The northern unit (2144) offers a similarly appealing layout with a fully renovated kitchen and numerous other upgrades throughout (list available). This unit also includes a large lower-level family room (not included in sq ft), along with interior access to an attached garage. The yard has been completely transformed into a tranquil garden oasis—ideal for entertaining or relaxing. Full seismic retrofit by Bay Area Retrofit. An incredible location situated in sought-after Poets Corner in Central Berkeley, the property is just 900 feet from Strawberry Creek Park and offers easy access to North Berkeley BART. 94 Walkscore. BESO score 1.

Map Location

Listing provided courtesy of Cameron Parkinson of District Homes. Last updated 2026-03-22 08:11:28.000000. Listing information © 2025 CRMLS.

  • Log in
  • ×