Property Detail

5659 Raymar

San Diego CA 92120

$1,329,000

Status: Active

Property Details

Description

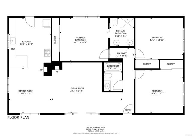
Welcome to this beautifully remodeled single family home in the highly sought after Del Cerro neighborhood, where modern comfort meets an unbeatable location. Situated within a highly rated school district and surrounded by neighborhood parks, this home also offers quick access to major freeways, shopping, and dining, making everyday living effortless. Inside, the home offers approximately 1,400 square feet with 3 bedrooms and 2 bathrooms, thoughtfully designed to create a bright, open, and inviting living space. The fully remodeled kitchen with stainless steel appliances and modern finishes flows seamlessly into the living area, where a cozy fireplace creates the perfect place to relax or entertain. Step outside to a generous 7,000 square foot lot, where the spacious backyard provides endless potential for outdoor gatherings, play, or future customization. The detached garage adds flexibility for parking, storage, or a possible workspace. Homes that combine turnkey condition, a large lot, and a prime Del Cerro location rarely stay on the market long. This is a rare opportunity to own a move-in-ready home in one of San Diego’s most desirable communities.

Map Location

Listing provided courtesy of Nataliya Fonseca of Real Broker. Last updated 2026-03-12 08:23:24.000000. Listing information © 2025 CRMLS.

  • Log in
  • ×