Property Detail

120 Madrona

Ben Lomond CA 95005

$599,000

Status: Active

Property Details

Description

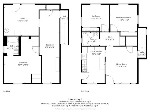
This charming 2 bed/2 bath mountain home embodies a sense of whimsy thanks to spacious flat and sunny yard with meandering pathways, artistic stone work to mimic a creek, and mature landscaping. Plenty of room to host guests for a delicious BBQ on the spacious deck while a warm summer breeze blows gently in the wind and with parking for seven vehicles the more the merrier. With the kitchen overlooking the living room thanks to an oversized serving window you wont miss a minute of fun while your guests lounge in the living room. Downstairs provides is a bonus flex spaces that could be converted into a workshop, WFH office, and home gym with room to spare. The fenced in yard provides a safe space for fido to play and gardeners are sure to delight in the bountiful sun and flat lot for gardening or adding raised beds. Easy access to Highlands Park, La Placa Bakery, incredible outdoor recreational activities, and commuter routes.

Map Location

Listing provided courtesy of The Madani Team of Room Real Estate. Last updated 2026-03-12 08:23:24.000000. Listing information © 2025 CRMLS.

  • Log in
  • ×