Property Detail

2734 Summit

Burlingame CA 94010

$3,198,000

Status: Active

Property Details

Description

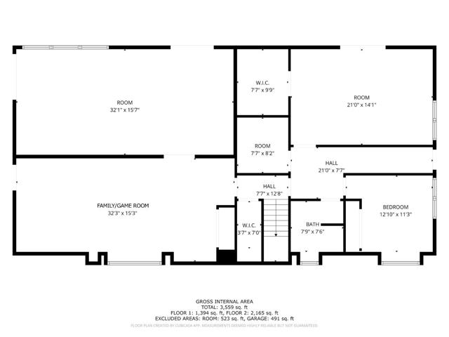
Classic Burlingame Hills living awaits in this beautifully designed home, offering exceptional space, VIEWS, abundant natural light, and a thoughtful floor plan on just over a half-acre of serene, private grounds. Lovingly maintained by the original owners since custom built in 1984, it offers a rare opportunity to enjoy retreat-like privacy while still just moments from Burlingame's shops and restaurants. Tucked off Summit Dr., the home opens with a light filled formal entry leading to a living room with vaulted ceilings and sweeping views. The spacious kitchen includes a breakfast nook and adjoins a formal dining room. Multiple sliding doors connect to the expansive rear deck, ideal for indoor/outdoor living. The main level also features two bedrooms, including an expansive primary suite with walk-in closet, large bathroom, and deck access, plus a hall bath and laundry room. The lower level offers a third bedroom, a massive second family/game room, a large bonus room being used as a 4th bedroom, and an approx. 523 sq ft unfinished workshop/bonus area with incredible potential. Additional highlights include a long driveway with ample parking, top rated Burlingame schools, and easy access to Hwy 280, major tech corridors, San Francisco, and Silicon Valley. Welcome home!

Map Location

Listing provided courtesy of Bill O'Leary of Compass. Last updated 2026-03-11 08:17:39.000000. Listing information © 2025 CRMLS.

  • Log in
  • ×