Property Detail

809 Sunset Ct

San Diego CA 92109

$1,450,000

Status: Active

Property Details

Description

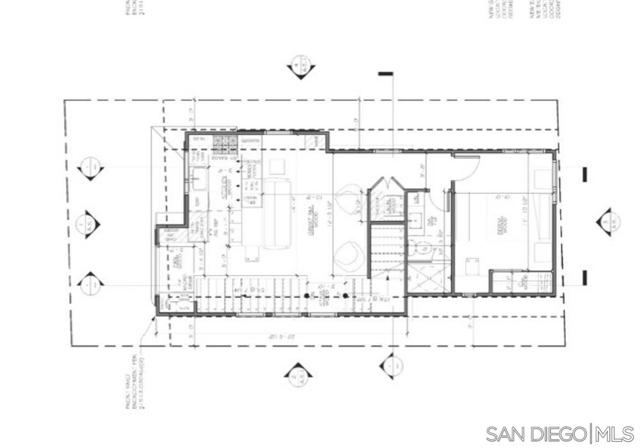
Development Opportunity: Coastal Approval and Permits Complete for 1375 Square Foot New Construction. 3 Bedrooms 3 Full Bath with Garage and Carport. Third Floor planned for practical entertaining with Indoor/Outdoor area and bar, with bathroom and private bedroom on the same floor. Living space and bedroom on the second floor. ADU approved bedroom/living area and kitchenette on the ground floor. Perfect design with the ADU that is no longer an option on new building plans. Start construction this year and be in your new home by next summer!

Map Location

Listing provided courtesy of Pam Wenhe of Wenhe Mortgage & Realty. Last updated 2026-02-24 09:22:31.000000. Listing information © 2025 CRMLS.

  • Log in
  • ×