Property Detail

25250 Rim Rock

Idyllwild CA 92549

$410,000

Status: Active

Property Details

Description

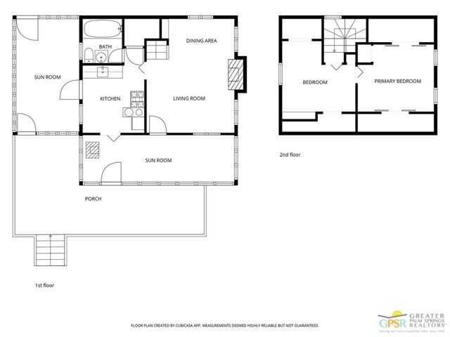
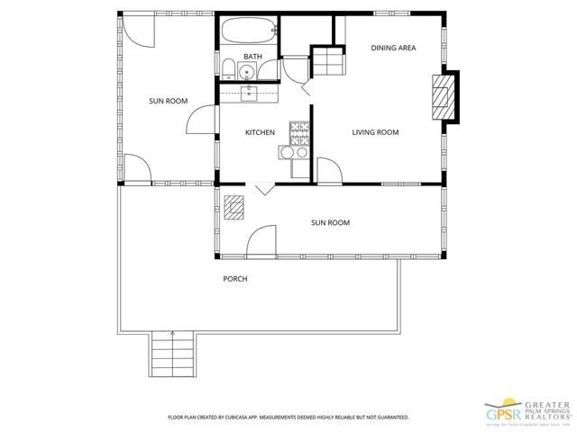
Unique opportunity to purchase a 1949 cabin with a terrific view of Tahquitz Rock in peaceful Fern Valley!. Recently renovated with new siding, new bathroom and new separate 2 car heated garage with finished storage loft. Natural light which floods two large sunrooms. There is a cozy wood burning vintage fireplace in the living room, a wood stove in one of the sunrooms, a mini-split in the other. The upstairs 2 room suite has a mini-split as well along with lots of storage. Spacious front deck completes this quaint getaway.

Map Location

Listing provided courtesy of Rick Martinez of Village Properties. Last updated 2025-12-12 09:14:44.000000. Listing information © 2025 CRMLS.

  • Log in
  • ×