Property Detail

41950 Maryn

Palm Desert CA 92211

$835,000

Status: Active

Property Details

Description

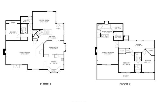
Located in a highly desirable Primrose neighborhood with no HOA. This beautiful family home has 4 bedrooms and 3 full bathrooms with a private in-ground saltwater pool and spa and front yard desert landscaping. Enter through double doors into a formal entry with a wood featured wall and an open floor plan offering a formal living room with vaulted ceilings, formal dining area, gourmet kitchen with granite slab counters and stainless steel appliances. There's breakfast bar seating opening into a large family room with a fireplace and built-in wet bar with granite counter, 2 built-in desk areas, a bedroom with ensuite bathroom and a laundry room that completes the main floor. Upstairs you will find 3 more bedrooms including a massive primary suite with fireplace, a walk-in shower, soaking tub, and His and Hers walk-in closets and a wrap-around balcony with panoramic mountain views. There are 2 more bedrooms that also access the balcony and there is a full size hall bathroom for the secondary bedrooms to share. This home also features plantation shutters throughout, french doors, ceiling fans, dual A/C, Wainscoting, recessed lighting, an attached 2-car garage with electric car plug-in, and a bonus room in the garage. The private back yard has a gated saltwater pool and spa, side yard with covered patio, artificial turf and cement area -- this is a perfect space for entertaining. Schedule your private tour today. Mortgage savings may be available for buyers of this listing.

Map Location

Listing provided courtesy of Marsha Kay McMahon-Jones of Redfin Corporation. Last updated 2025-11-03 09:17:38.000000. Listing information © 2025 CRMLS.

  • Log in
  • ×