Property Detail

560 30th

Santa Cruz CA 95062

$225,000

Status: Active

Property Details

Description

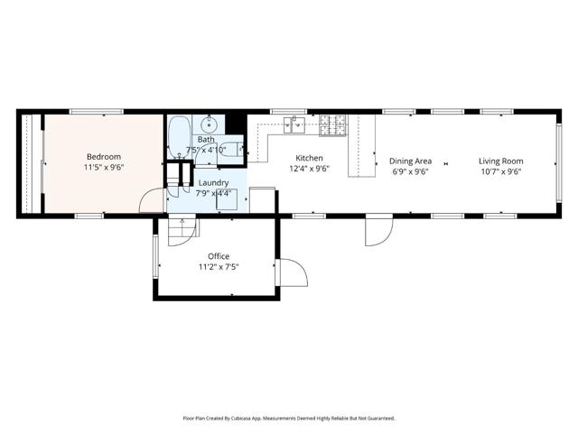
Welcome to 560 30th Avenue #33 in the Snug Harbor Mobile Home Park, an affordable opportunity to live just down the road from iconic Pleasure Point, one of California's most beloved coastal communities. Enjoy world class surf breaks, local shops, and neighborhood cafes just minutes from your doorstep. This home offers approximately 600 sq. ft. of living space with a light filled living area, an updated kitchen with quartz countertops, and a convenient laundry area. Toward the back of the home, you'll find the main bedroom, a full bath, and a bonus room that could serve as a small guest room, office, or creative space. This cozy space offers excellent potential for someone seeking a coastal lifestyle or a weekend getaway near the beach. Opportunities to own near Pleasure Point at this price point are few and far between, dont miss your chance to make this place your own!

Map Location

Listing provided courtesy of Laif Mc Clellan of Coldwell Banker Realty. Last updated 2025-10-24 08:16:46.000000. Listing information © 2025 CRMLS.

  • Log in
  • ×