Property Detail

785 Lemon Ave

Vista CA 92084

$2,350,000

Status: Active

Property Details

Description

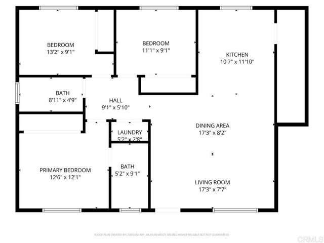
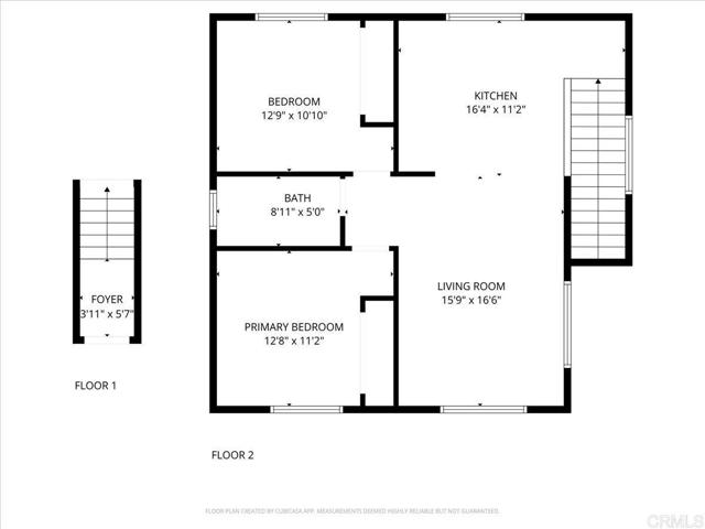
2025 NEW CONSTRUCTION! 2 duplexes totaling 4 units. HOMEBUYERS: use your Conventional, FHA or VA loan to live in 1 unit, rent remaining 3 to offset mortgage. INVESTORS: 1031 exchange before end of year. Projected gross cap rate 6.28% with $147,600/year estimated gross income. Tenants occupying Units 1-3. All units feature LG washer & gas dryer, Innovair mini splits, Frigidaire stainless steel appliances, gas stoves, quartz countertops, energy efficient dual pane windows, recessed LED lighting, water resistant vinyl oak flooring, tankless water heaters. Bottom units boast modern kitchens with white upper cabinets & oak lower cabinets; 3b/2b unit complete with dishwasher & pantry. Top units feature popular sage green kitchen cabinets & islands with bar seating. All with sleek gold hardware & fixtures. Outside you’ll find new composite shingle roof, gutters, owned solar, vinyl siding & tinted concrete to match, decorative wood pillars, fresh landscaping. On-site & street parking. Units separately metered. Located close to Moonlight Amphitheatre, Alta Vista Botanical Gardens, downtown Vista shopping & restaurants, easy freeway access to the beach! Unit 1 (rented): Lower level 3b/2b, rent $3,800/mo Unit 2 (rented): Top level 2b/1b, rent $2,900/mo Unit 3 (rented): Lower level 2b/1b, rent $2,800/mo Unit 4: Top level 2b/1b, est. rent $2,800/mo Unit 1: Lower level 3b/2b, est. rent $3,800/mo Unit 2 (rented): Top level 2b/1b, est. rent $2,900/mo Unit 3: Lower level 2b/1b, est. rent $2,900/mo Unit 4: Top level 2b/1b, est. rent $2,900/mo

Map Location

Listing provided courtesy of Malena Boetel of eXp Realty of California, Inc.. Last updated 2025-12-20 09:11:17.000000. Listing information © 2025 CRMLS.

  • Log in
  • ×