Property Detail

926 Philadelphia #49

Ontario CA 91762

$445,000

Status: Active

Property Details

Description

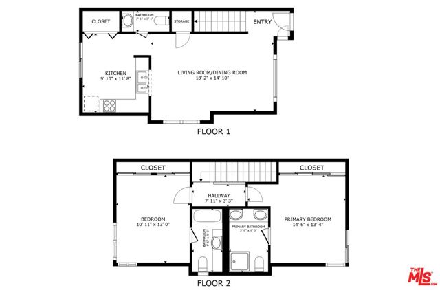
Wonderful for first-time buyers this bright, spacious **2 bed/2.5 bath end unit condo** in the gated Brittany Park community, perfect for a modern lifestyle. The open-concept living and dining area flows to a private porch with a greenbelt view. Enjoy the convenience of a downstairs half bath and in-unit laundry. The spacious kitchen features a large sliding door leading to your private patio ideal for BBQs and entertaining with direct access to the one-car garage and assigned uncovered space. Upstairs, find two oversized **primary suites**, each with plentiful closet space, and one offering a private balcony for morning coffee or a quiet WFH moment. Plus, the low HOA dues cover key amenities like the community pool, playground, gym, trash, and water, all within **walking distance of local restaurants, shops and schools**

Map Location

Listing provided courtesy of Victor Quiroz of Berkshire Hathaway HomeServices CA Properties. Last updated 2025-10-21 08:17:28.000000. Listing information © 2025 CRMLS.

  • Log in
  • ×