Property Detail

11 Appian

Danville CA 94526

$2,199,900

Status: Active

Property Details

Description

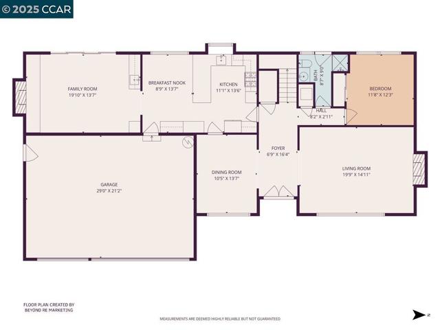
Six bedrooms and 3 bathrooms, 1 bedroom and bathroom downstairs, Kitchen & Bathrooms have been updated, home has been repainted inside, has new carpet, hardwood floors just refinished , dual pane windows, plantation shutters, two skylights, new light fixtures. Landscaping has been redone., solar pool, sports court, shed and steps up to a sitting areas w/firepit and seating, Two blocks to SRVBlvd, 3 blocks to The Livery, convenient to downtown, Iron Horse Trail. Amazing home in a fantastic culdesac location!!!!!!

Map Location

Listing provided courtesy of Bette Sue Schack of Compass. Last updated 2025-10-23 08:17:02.000000. Listing information © 2025 CRMLS.

  • Log in
  • ×