Property Detail

10696 Lilac

Loma Linda CA 92354

$639,999

Status: Active

Property Details

Description

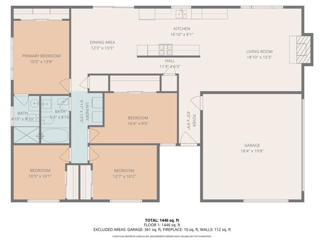
This Single story 4-bedroom, 2-bath home offers the perfect blend of comfort and opportunity, ideal for a growing family or as a rental for Loma Linda University students. Excellent location - less than two miles from the VA Ambulatory Center, VA Hospital, and Drayson Athletic Center; freeway close as well. Enjoy brand-new flooring throughout and a spacious backyard with room for an ADU. An updated kitchen separates a family room with a fireplace and a dining room with slider access to the backyard with a covered patio. There is a primary bedroom with it's own bathroom, and three additional bedrooms - all with brand new carpets. indoor laundry is next to the bedrooms. The yard is lined with fruit trees, making this the perfect spot for any green thumb. There is even RV parking, and an attached two car garage with direct access into the home. Excellent Redlands schools.

Map Location

Listing provided courtesy of JOSEPH SHAW of Shaw Real Estate Brokers. Last updated 2025-11-14 09:16:10.000000. Listing information © 2025 CRMLS.

  • Log in
  • ×